ОПИСАНИЕ
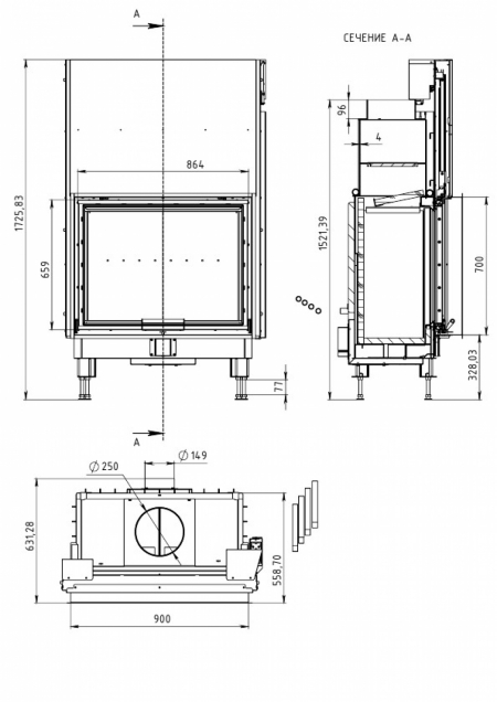
Топка каминная ТКТ 11.0-01 (в модификации "FENIX 900")
Современная и функциональная топка с плавным и бесшумным подъёмным механизмом дверцы. Дно топки выполнено в виде чаши с бортом и выложено шамотным кирпичом. Задняя и боковые стенки топочной камеры футерованы 3D вермикулитом. Шамот и вермикулит – это природные, экологически чистые материалы, при их нагревании не выделяется запах и токсичные вещества.
Вермикулит обладают высокой отражающей способностью, что существенно повышает полноту сгорания топлива.
Топка оснащена функцией пролонгированного горения и системой вторичного дожига. Очистка конструкции и дверцы занимает минимум времени благодаря системе самоочищения «чистое стекло».
В зависимости, от индивидуального архитектурного решения по установке топке, подача воздуха снаружи подключается снизу либо через заднюю стенку топки.
Топка окрашена термостойким лаком бельгийской фабрики Tempores (цвет антрацит).
Дверка у топки FENIX 900 может быть исполнена в двух вариантах:
1. С наружным панорамным стеклом с шелкографией по периметру.
2. Большое стекло обрамлено металлической рамкой.

