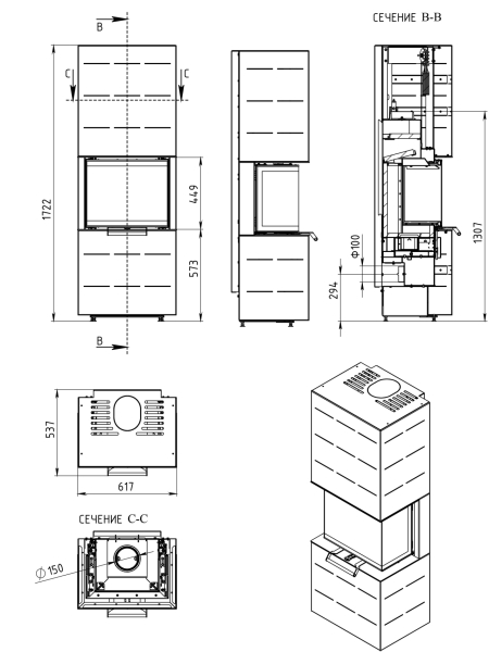
ОПИСАНИЕ
Печь-камин СЕЛЕНА – изюминка в модельном ряду печей каминов МЕТА-БЕЛ. СЕЛЕНА – компактная, стильная и современная печь-камин с подъемным механизмом двери. Дверь с тремя стеклами, с принтингом по периметру - предоставляет великолепный обзор огня и позволяет наблюдать за огнем с разных ракурсов. Боковые стекла, при необходимости, открываются в сторону для очистки. Камера сгорания гармонично вписывается в каминную систему. В топочной камере можно разместить поленья длиной до 30 см. Как первичный, так и вторичный воздух, контролируется с помощью одного рычага.

